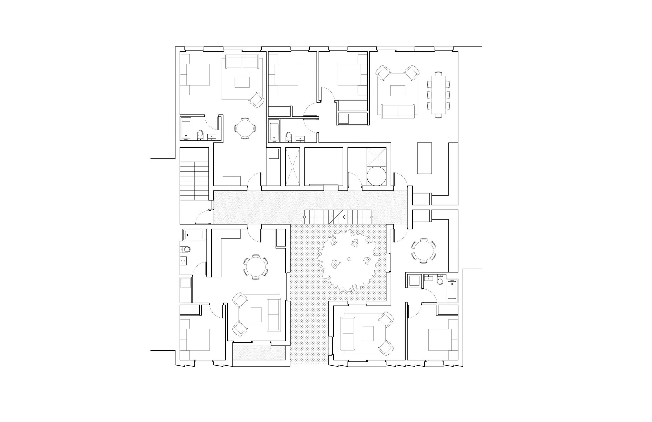
A five-story, fifteen-unit residential building that reimagines urban living through light, openness, and connection to the outdoors. At its heart is a sculptural courtyard and an external circulation system that introduce daylight, greenery, and a sense of community into the everyday experience of city life. Unlike the typical Brooklyn rental, often limited to a single street-facing exposure, this project offers units with multiple orientations, drawing natural light and views from several directions. Many two-bedroom residences enjoy uninterrupted northern exposure, while a diverse mix of unit sizes—from compact studios to expansive family apartments—accommodate a wide range of residents.

Departing from the inward-facing courtyards common in large, multifamily projects, this design shapes its courtyard as a shared visual and spatial connector. Engaging the street rather than retreating from it, the courtyard links public and private realms and channels abundant southern light deep into the building. The southern elevation is clad in precast concrete panels, angled to animate the façade with shifting patterns of shadow and light throughout the day. Large-format sliding glass doors punctuate the street wall, extending living spaces outward and reinforcing the project’s connection to air, light, and the surrounding streetscape.